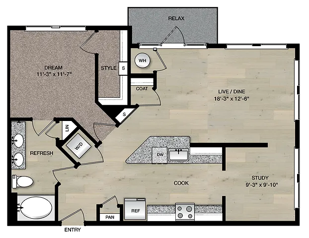
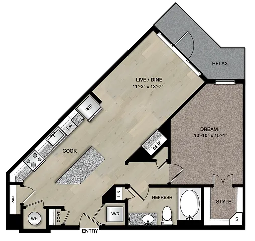
Paloma Village • Path