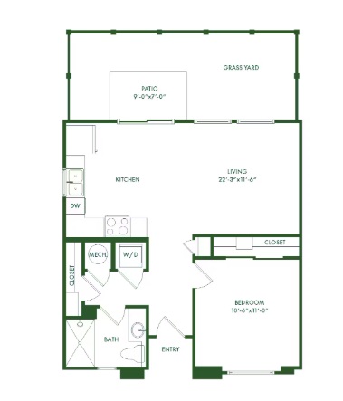
YardHomes Parkside • Path