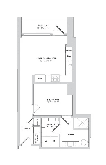
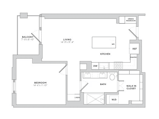
Maple Terrace Residences • Path