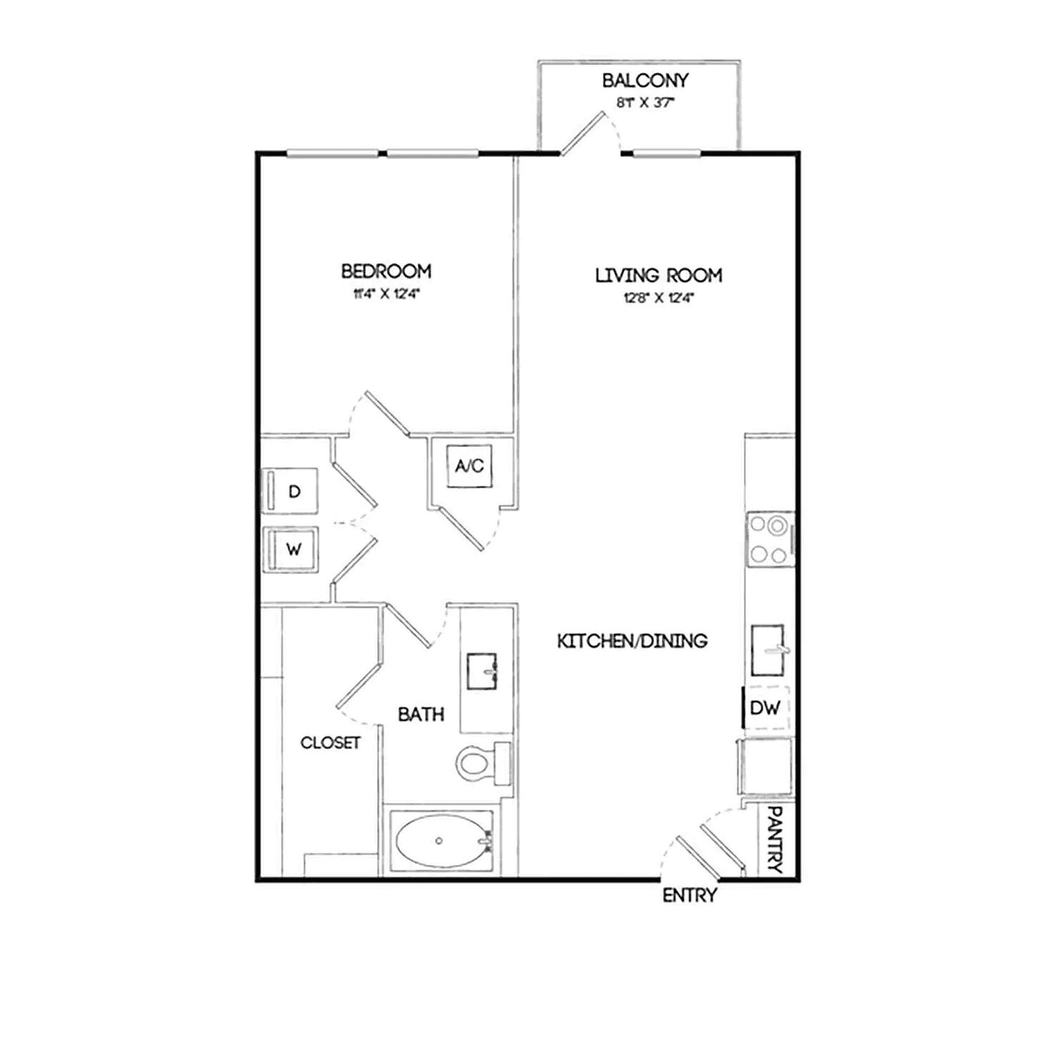
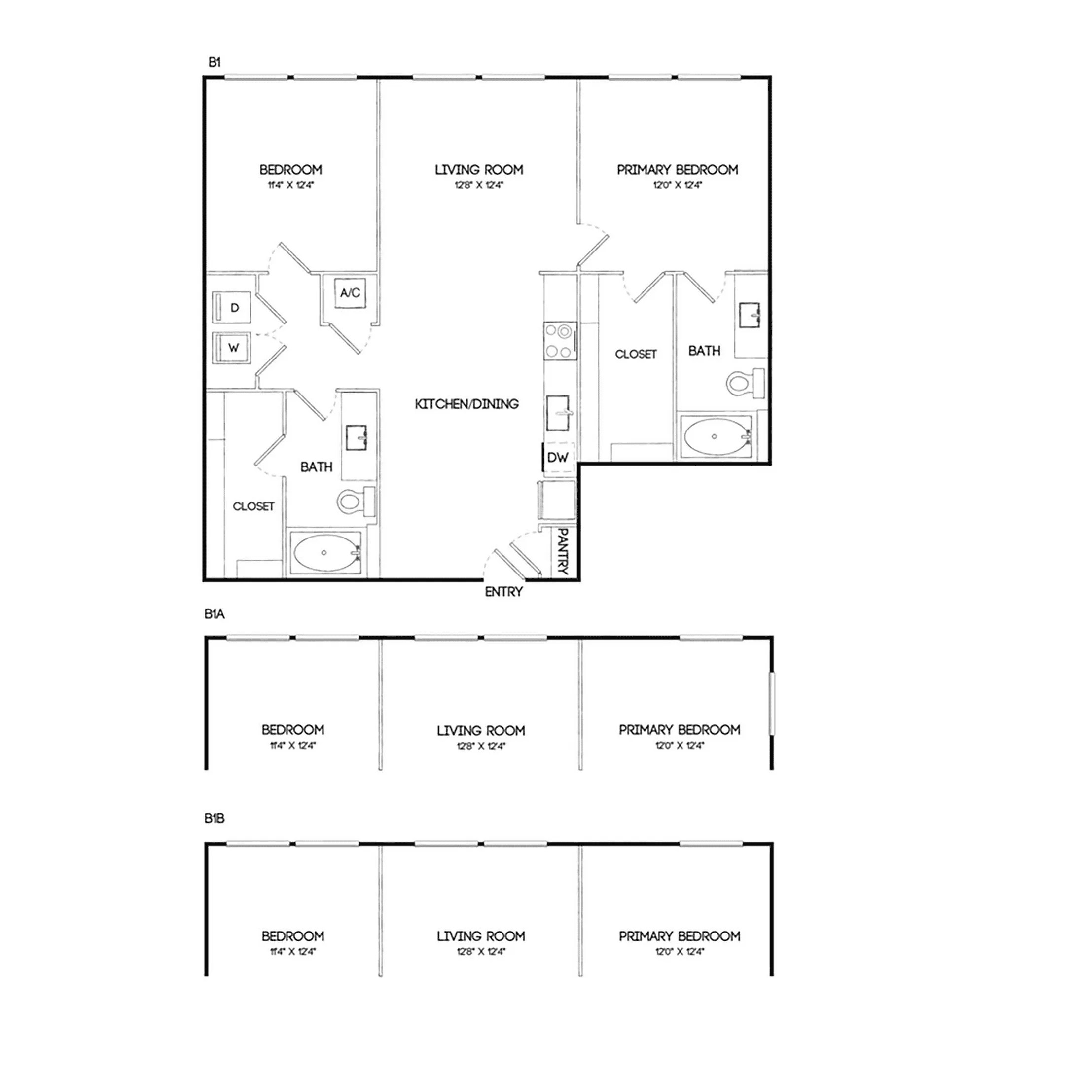
Birchway Quarry Falls • Path