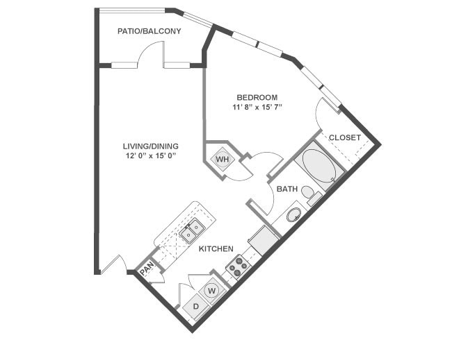
AMLI at the Ballpark • Path