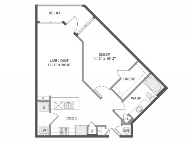
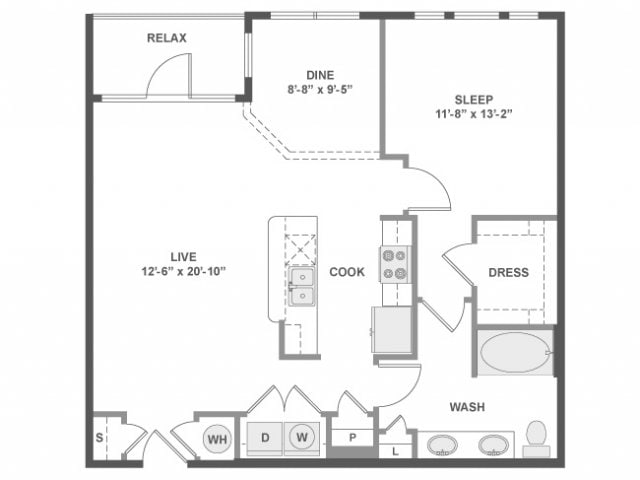
AMLI Frisco Crossing • Path