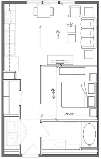
Junction 15 • Path