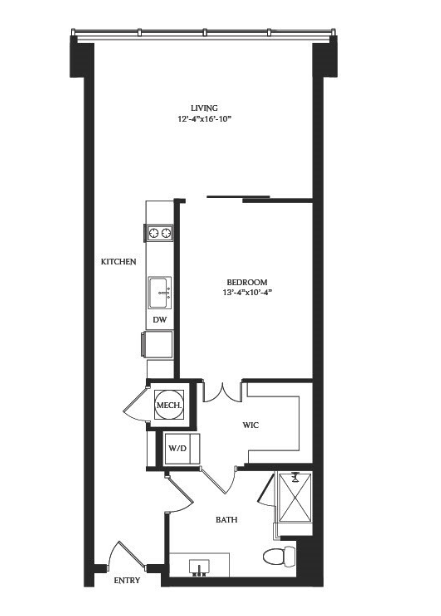
Peridot Residences • Path