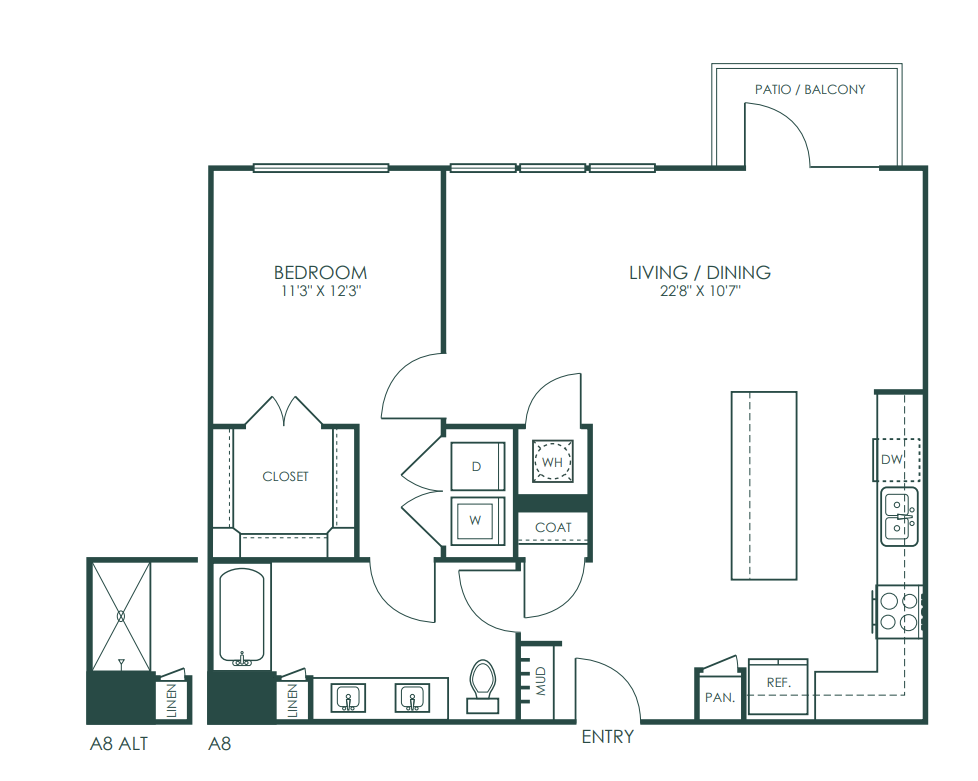
The Jade at Frisco • Path