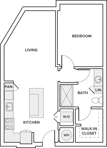
Modera Frisco Square • Path