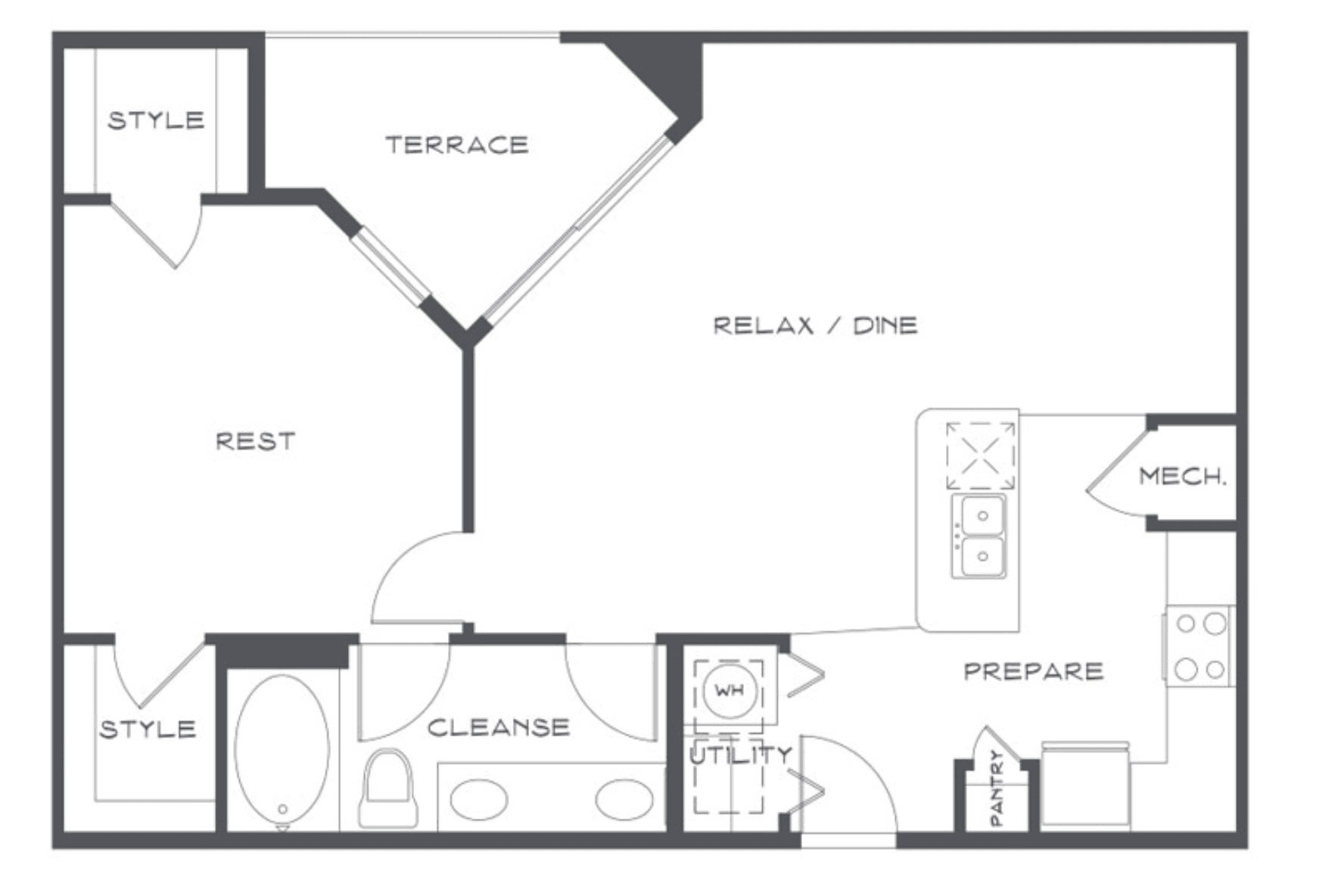
The Atherton • Path