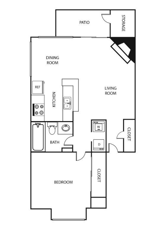
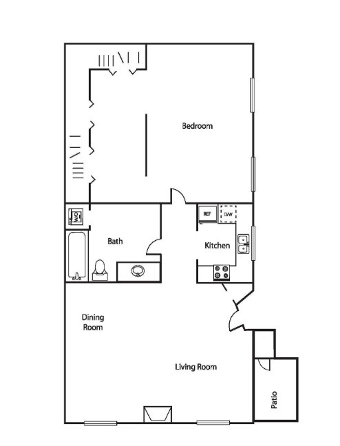
Lake Village West • Path