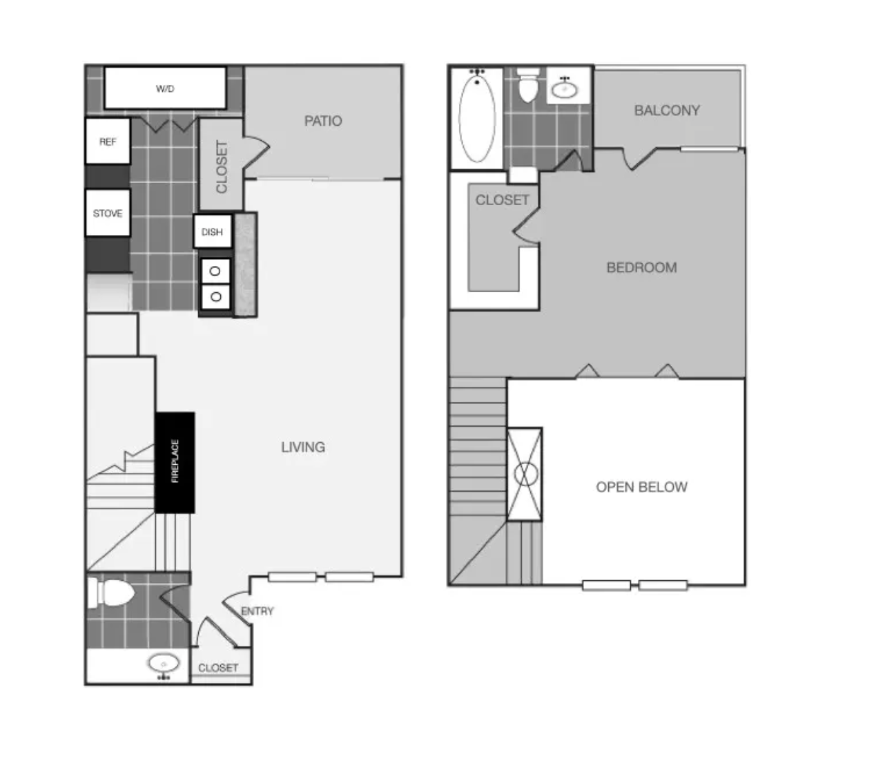
The Baxter by BX5 • Path