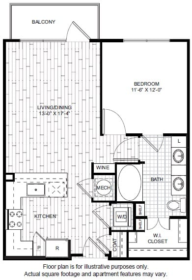
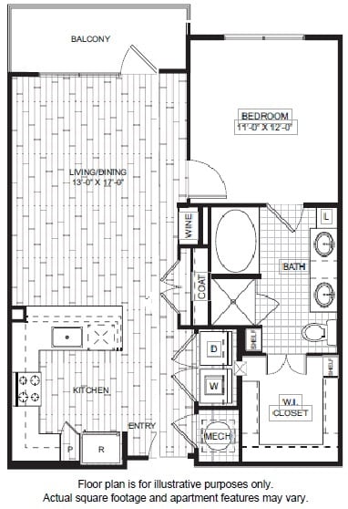
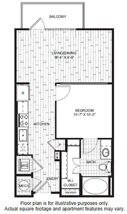
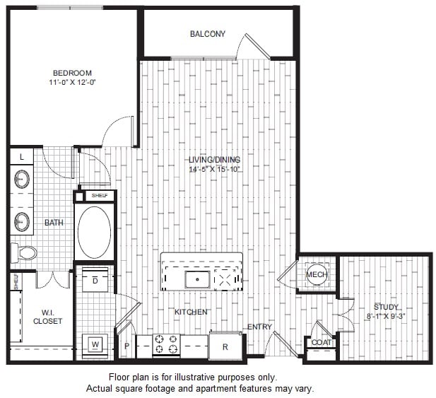
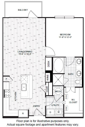
Windsor CityLine • Path