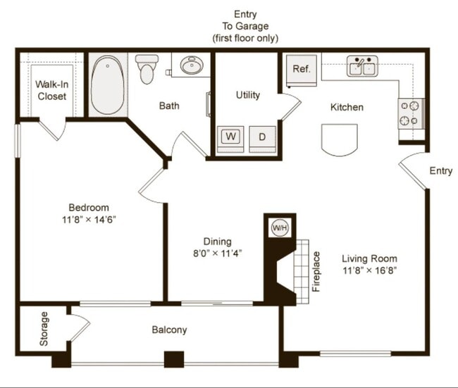
The Lyndon • Path