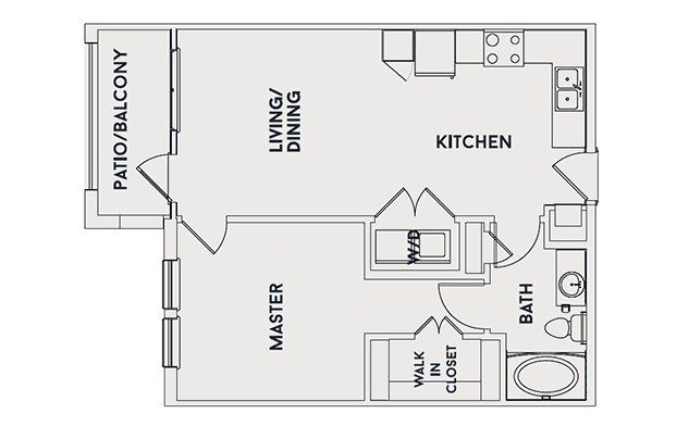
The Bridge at Heritage Creekside • Path