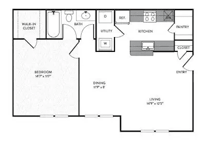
29Fifty • Path