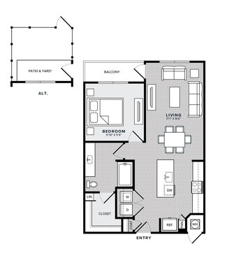
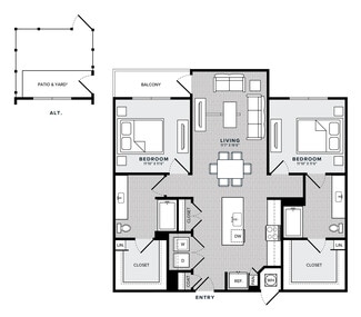
Prose Prominence • Path