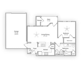
Aviva Fort Worth • Path