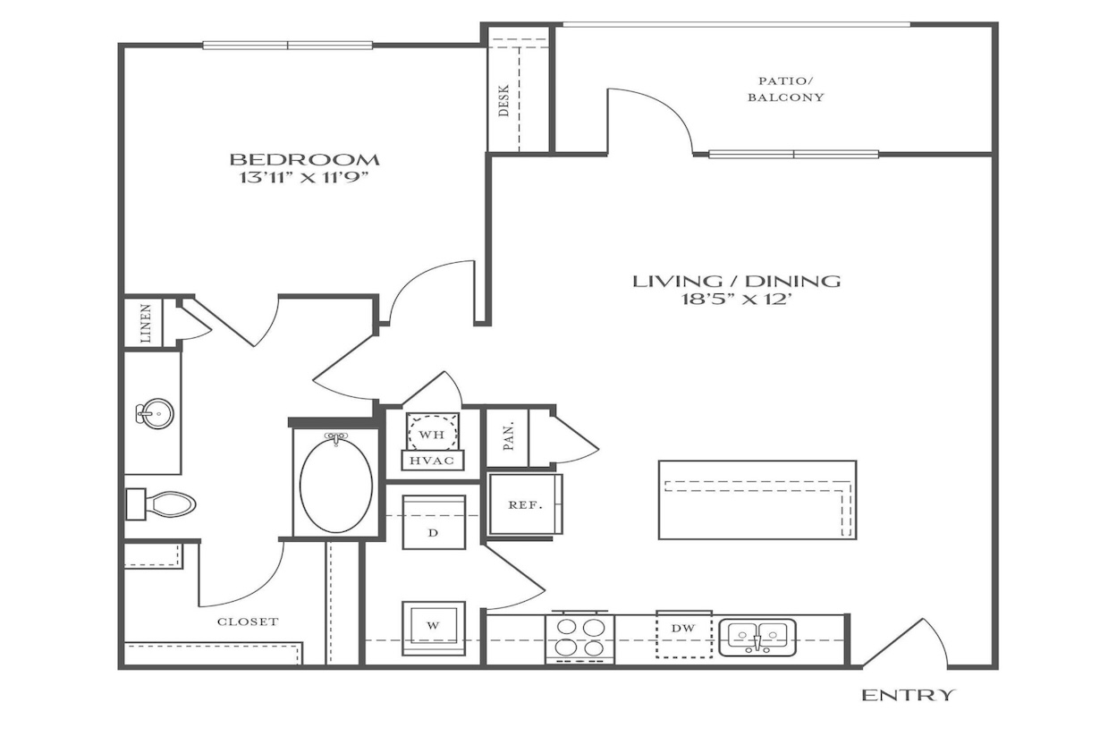
Jovia • Path