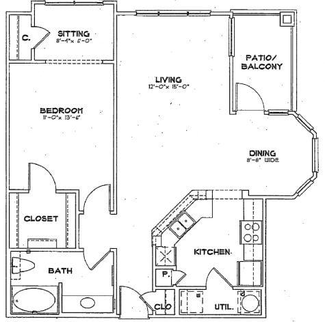
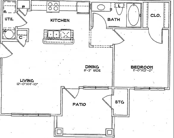
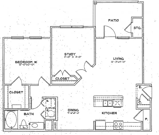
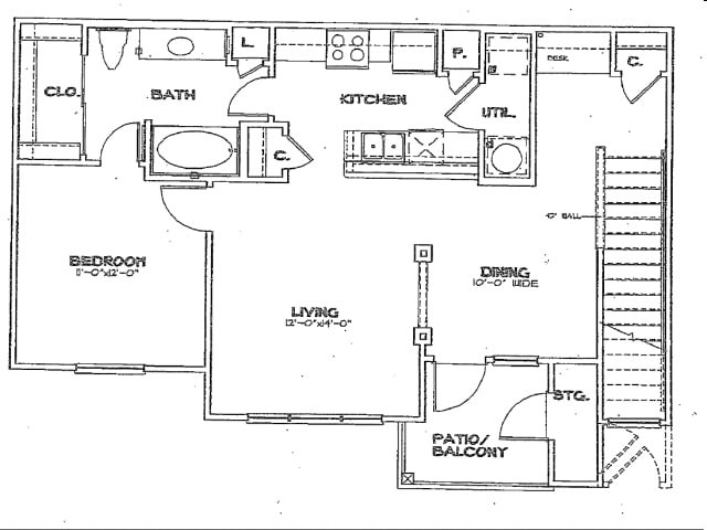
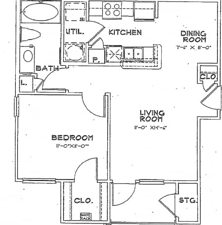
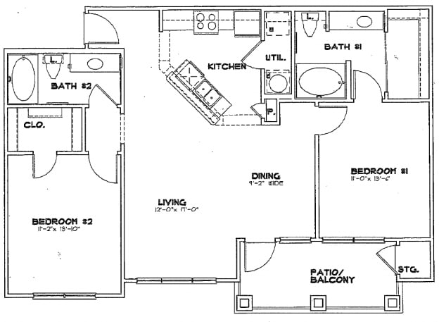
Stone Lake • Path