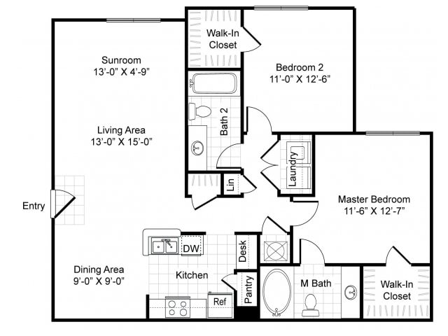
Indigo Pointe • Path